Park Cihelka Libčice nad Vltavou


Project introduction

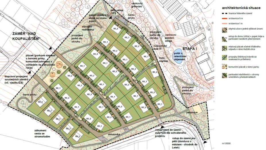
Greenfield development of 117 residential units in the picturesque countryside of Libčice nad Vltavou near Prague. The advantage of the (micro)location is, among other things, excellent train connection to the center of Prague (train stop only 300m from the subject area).

Project will consist of 39 houses, each with three residential units in superior design. The total future sales floor area will be 11.5 thousand m2 excluding terraces. The project will include the construction of a park, including a circular running track.

Silverline Real Estate purchased the land, whereas our plan complies with the zoning plan and is supported by the city of Libčice n. Vltavou (planning agreement already signed). Application for the building permit has already been submitted (combined procedure for obtaining a zoning permit and building permit).

Construction of technical and transport infrastructure and family houses will then take place in two stages: the first stage of construction is expected to take place in 2026-27, the second in 2029-30.

Summary
  • Location: Libčice nad Vltavou

  • Architect: XTOPIX

  • General designer: EXA

  • Planned completion: 2027 (phase I), 2030 (phase II)

  • Gross development value: EUR ~52 mn

  • Result: 117 residential units in 39 apartment buildings

By subscribing to the newsletter, you agree to the terms of the GDPR.

Don't miss any project