Královický Háj Praha


Project introduction

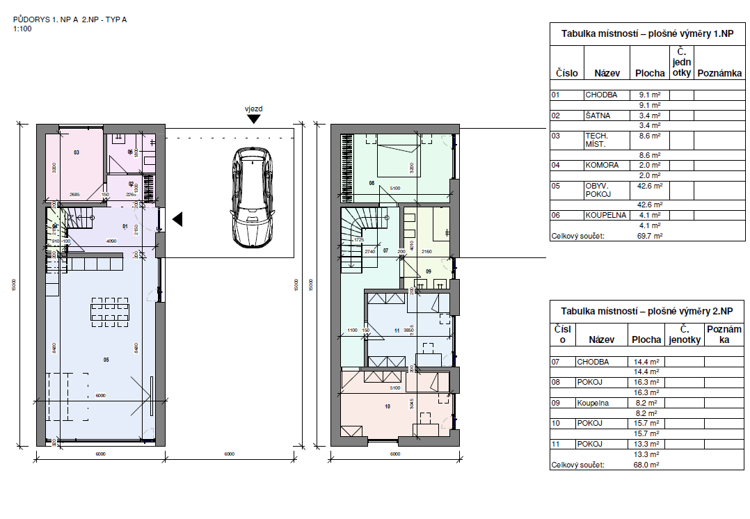
Greenfield development in a favorite location. Calm municipality, only ~20min southeast from center of Prague, with full amenities and surrounded by nature. Development of up to 20 detached houses/ villas on a >12 ths. sqm building plot, realized in two phases: (i) land zoning, construction of technical infrastructure and driveway (ii) construction of up to 20 stand-alone detached houses or villas.

Project leverages on strong urbanism in Prague and thus growth of population of Prague connected with lack of land dedicated for residential development. This situation causes a long-term overhang of demand for building plots for (semi)detachaed houses over its supply.

Summary
  • Location: Praha-Královice

  • Architect: ANDRLE ARCHITEKTI

  • Planned completion (land development): 2026

  • Gross development value: EUR 18 mn

  • Result: up to 20 detached houses/ villas in suburbs of Prague (alternatively up to 20 building plots)

By subscribing to the newsletter, you agree to the terms of the GDPR.

Don't miss any project